Vážení a milí studenti i zájemci o studium,
od nového školního roku se můžete, pokud vše půjde dobře, a já věřím, že už ano, těšit na 1. část modernizace školy. A nebude to nic malého. Náš zřizovatel nám na to poskytl více než 30 000 000 Kč.
Těšite se můžete na
- zrekonstruované
- laboratoře chemie,
- učebny výpočetní techniky v 1. patře,
- učebny jazyků ve 2. patře,
- učebnu fyziky,
- učebnu biologie,
- prostor školního psychologa,
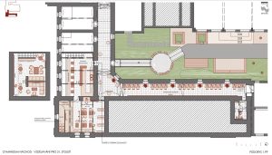
- na nové prostory ve sklepě školy
- kantýna (s možností posezení),
- studentský klub (navazuje na kantýnu, bude sloužit k výuce menších skupin, k práci na projektech, ke vzájemnému potkávání se…),
- multifunkční knihovna (divadelní podium, aréna pro roboty, koberec pro relaxaci. stolová úprava…),
- počítačová galerie (15 nových pracovišť pro výuku, práci na projektech ve volném čase…),
- výstavní galerie (pro prezentaci vašich prací…),
- multifunkční dvůr (místa pro odpočinek a setkávání, divadelní podium, workoutové hřiště…)
a také na výtah pro vozíčkáře.
Podrobnosti si můžete prohlédnout v přiložené studii, ze které vycházela projektová dokumentace, na základě které teď probíhají výběrová řízení na dodavatele jednotlivých částí modernizace.
Na tuto 1. část by mělo následně navazovat ještě 5 etap kompletní rekonstrukce učeben školy. Letos by se měla připravit projektová dokumentace a následně by měla být vypsána výběrová řízení na dodavatele. Odhadovaná částka na tuto významnou rekonstrukci je cca 100 000 000 Kč.
Myslím, že se máte na co těšit. Já se těším :-).
Pavel Škoda, ředitel školy



